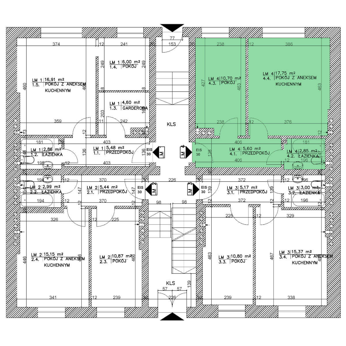
| 1 | Przedpokój | 5.60 m2 |
| 2 | Łazienka | 2.85 m2 |
| 3 | Pokój | 10.70 m2 |
| 4 | Pokój z aneksem kuchennym | 17.75 m2 |
| Powierzchnia całkowita | 36.90 m2 | |
Mieszkanie dwupokojowe w układzie sypialnia, salon z aneksem kuchennym oraz łazienka. Standard wykończenia; na podłodze panele oraz płytki, drzwi wewnętrzne białe, płytki w łazience, piec dwufunkcyjny gazowy.



