Przejdź do treści
Strona główna
Mieszkania
Kontakt
PL
EN
+48 535 975 546
Strona główna
M15
M15
Powrót do strony głównej
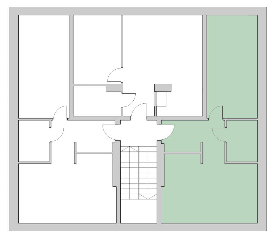
M15
Status:
Sprzedane
Powierzchnia:
52 m
2
Pokoje:
2
Lista pomieszczeń:
1
Przedpokój
7.20 m
2
2
Łazienka
4.18 m
2
3
Pokój z aneksem kuchennym
22.04 m
2
4
Pokój
18.58 m
2
Powierzchnia całkowita
52.00 m
2