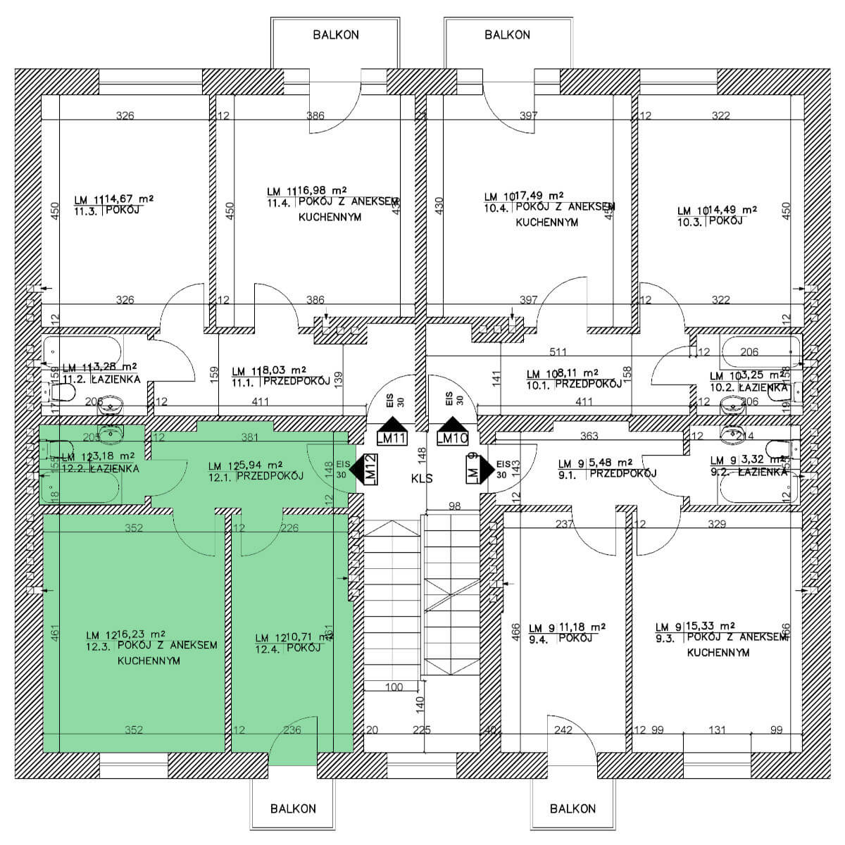
| 1 | Przedpokój | 5.94 m2 |
| 2 | Łazienka | 3.18 m2 |
| 3 | Pokój z aneksem kuchennym | 16.23 m2 |
| 4 | Pokój | 10.71 m2 |
| Powierzchnia całkowita | 36.06 m2 | |
Jak wszystkie pozostało to mieszkanie także ma dwa pokoje. Warto dodać, że jest możliwość połączenia go z mieszkaniem sąsiednim, numerem 11. Wówczas powstanie piękne 80m2 mieszkanie, dwustronne z dwoma balkonami i łazienkami. Mieszkanie nr 12 ma ekspozycje południowo wschodnią. Na podłodze znajduje się wylewka. Ściany zostały wygładzone i pomalowane. W łazience znajduje się piec marki de Dietrich.
